PUERTAS DE ACCESO con cerrojo con ranura o cerrojo con llave

product image

Descripción

Los registros y puertas de acceso se fabrican con yeso reforzado con fibra de vidrio y un 70% de vidrio reciclado para así obtener un diseño ecológico que se integra a sus paredes y cielorrasos sin junturas.

Consiste en un marco que rodea, o bien a una tapa, o bien a una puerta cuyas bisagras no se ven, los registros o puertas de yeso con fibra de vidrio son ideales para instalaciones en donde se requiera acceso habitual.

De peso ligero y fáciles de aplicar cualquier acabado (pinturas, texturas) estos registros pueden ser usados tanto en nuevas construcciones como así también en antíguas construcciones que han sido remodeladas en un gran número de usos.

Su ingenioso diseño facilita a los contratistas realizar sus trabajos en forma eficiente, mejor y más rápido gracias a sus bordes biselados, acabado nivel 5, incluye marcas para tornillos avellanados, con incrustaciones de madera terciada que suma un refuerzo mecánico superior en las uniones con los paneles de yeso-carton, que no encojen, no se rajan ni se comban. Nuestros moldes de precisión realizados con máquinas por control numérico computarizado (CNC) brindan una solución estéticamente agradable para lograr un diseño interior más atractivo.

  • Simplemente provea la estructura para montar el marco externo del registro o puerta
  • Coloque el marco con tornillos de paneles yeso/cartón en las marcas avellanadas
  • Las técnicas de encintado y acabado son iguales a las utilizadas en los paneles de yeso/cartón convencional
  • Producto estable a los cambios de temperatura

Los registros o puertas de acceso de yeso reforzado con fibra de vidrio tienen sus bordes chanfleados y tienen un acabado para integrarse con los paneles de construcción en seco (yeso/cartón) con un mínimo de líneas visibles.

Los registros y puertas de acceso Castle están disponibles en más de 690 tamaños para así ofrecer soluciones tanto a pequeñas como a grandes aberturas. Nuestros productos están clasificados como Clase A en lo que respecta a propagación del fuego según las siguientes normas:

ASTM Standard E1264-08
ASTM Standard E84-80

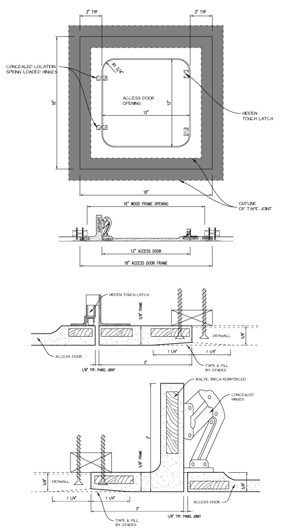
Esquema general y detalle vista corte transversal del modelo con bisagras
product diagram

PANEL CON BISAGRAS y sistema de cierre a presión con la mano

product image

Nuestro innovador registro de acceso de yeso reforzado con cierre a presión se integra sin junturas a sus paredes y cielorrasos. Se trata de un marco y una puerta que se abre presionando firmemente en una de las dos esquinas en un movimiento hacia arriba y así desenganchar el mecanismo de cierre a presión (sistema europeo) de la parte trasera del registro. Una vez instalado y terminada su superficie que se “fusiona” a las superficies circundantes, lo único que queda a la vista es una línea uniforme del contorno de la puerta.

Un junta de neoprene en el marco asegura una barrera que previene la circulación de aire, humo o ruidos. (Por separado)

Disponibles en yeso reforzado con fibra de vidrio (para interiores) o en cemento reforzado con fibra de vidrio (para exteriores)

  • Paneles de yeso (Panel Rey, Tablaroca)
  • Todos los paneles se revisten en espesor de 5/8" (el calce con panel de yeso es de ½” donde se junta con el marco)
  • Uso en cielorrasos o paredes
  • Aptos para nuevas construcciones como también para las antíguas
  • Norma americana ASTM E84-80
  • Norma americana AASTM E1264-08

Características:

  • Abertura virtualmente invisible (solo una juntura contínua de 1,6 mm)
  • Superficies contínuas, contíguas y prolijas sin herrajes a la vista
  • Utilice el acabado de su elección directamente sobre el marco y la puerta de acceso

Características comunes:

  • Disponibles con esquinas cuadradas o curvas
  • Mecanismo de cierre a presión y bisagras ocultas a la vista
  • De peso ligero y libres de humedad, no se agrietan ni deforman, resistentes al moho
  • Los paneles permanecen montados al marco
  • Junta de neoprene pegada a lo largo de todo su perímetro para impedir el paso de aire y humo (por separado)

Productos Castle Access Panels & Doors encuéntrelos en paredes y cielorrasos. Nuestros registros y puertas de acceso son la opción elegida entre arquitectos y diseñadores en proyectos de construcción de alta gama a lo largo y ancho de Norteamérica.

Esquema típico del registro de acceso con bisagras y cierre a presión con esquinas curvas
product diagram
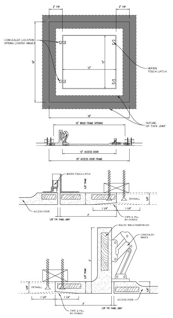
Esquema típico del registro de acceso con bisagras y cierre a presión con esquinas cuadradas
product diagram